
Location: Kansas City, MO
Year/Timeline: 2020-21
Area of Focus: Micro Housing
Department/Courses Involved: Interior Architecture – Advance Interior Architecture Studio (IARC 823) Led by Professor Vibhavari Jani (Design) and Associate Professor Kutay Guler (Programming)
Executive Summary: Aaron Burson, an Interior Architecture graduate student, in his thesis project, explored an important question: Can micro-apartments make housing in urban centers more affordable for young professionals? Guided by Professors Vibhavari Jani (Design) and Professor Kutay Guler (Programming), Aaron converted an old warehouse building into micro-apartments in the West Bottoms area in Kansas city as a strategic response to the growing affordability crisis facing young professionals in the United States. Rising student loan debt and increasing urban living costs limit access to traditional housing for recent graduates. By proposing a thoughtfully designed micro-apartment community, this project demonstrates how compact living can support both financial stability and a better quality of life. Emphasizing wellness, efficiency, and shared social spaces, the design challenges negative perceptions of small living environments while fostering community, connectivity, and access to vibrant urban districts for moderate-income, under-resourced young and emerging professionals.
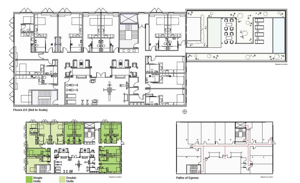
Project Description: This project explores the housing typology of micro-apartments to address the current housing crisis for young and emerging professionals in America. Designed by Aaron Burson With student loan debt steadily increasing, recent college graduates are finding it difficult to repay their debt. The financial burden of this debt can make the options for housing very limited due to high costs of living in central urban areas. Until there is a comprehensive solution to the student debt crisis in America, young professionals will likely have great need for housing that is more affordable than standard market rent studio and one-bedroom apartments.

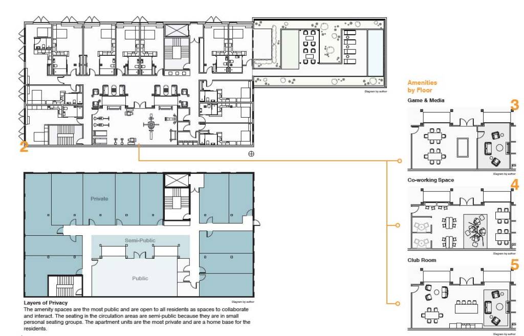
A micro-apartment strategy has the potential to allow people to live in dense urban areas for a lower cost. Small living spaces are often perceived as unfavorable, but, when they are thoughtfully designed to support the health and wellbeing of the resident, small spaces can make it possible for young people to lower their cost of living while retaining a high quality of life. This project is designed to nurture social connections to combat loneliness pandemic and foster a strong sense of community. The warehouse is located immediately adjacent to desirable downtown districts, predominantly populated by college educated young, moderate income earning professional, aged 20-29 who live alone. By providing co-working, entertainment, wellness and shared social areas within the central areas of each floor, this project offers a model for an affordable micro apartments to assist recent college graduates in achieving financial stability while living in desirable areas.
















