
Stakeholder/Partners: Habitat for Humanity of the Northern Flint Hills, Prairie Band Ag, and the Workforce Solar Housing Partnership (Manhattan Area Technical College, Ft. Riley Home Builder’s Institute, Fint Hills Job Corp Flint Hills Renewable Energy and Efficiency Cooperative)
Location: Ogden, KS
Area of Focus: Affordable, Zero Carbon Housing
Department/Courses Involved: Architecture
Project Funding: K-State 105 Engagement Initiative
Executive Summary: The Zero Carbon Microhome is 11th project completed by the Net Positive Studio, and K-State architecture studio led by Prof. Michael Gibson. The goals of the ZCMH project extend from the mission of the studio: to balance the need for an affordable, replicable home design with performance that can achieve net zero site energy (i.e., the home produces as much or more energy than it uses on a yearly basis, when accounted for at the site). Attaining these goals require students in the studio to exercise a combination of conceptual creativity, design excellence, integration of passive design principles, rigorous detailing and document development, and the use of advanced tools for energy modeling and analysis; for six projects, including the ZCMH, the studio also prefabricated the house, using a model-based process required by prefabrication to support performance goals of the project. For the ZCMH project, the studio added a new goal: to achieve or approach “zero carbon” in the project’s carbon balance, while demonstrating a home that could sell for $150,000 or less, providing a new housing opportunity that doesn’t exist in the current communityin a community where the current (August 2025) median listed home price is $312,450 and new small homes in the 1,200 to 1,600 ft2 range typically sell for over $350,000 (Realtor.com 2025).
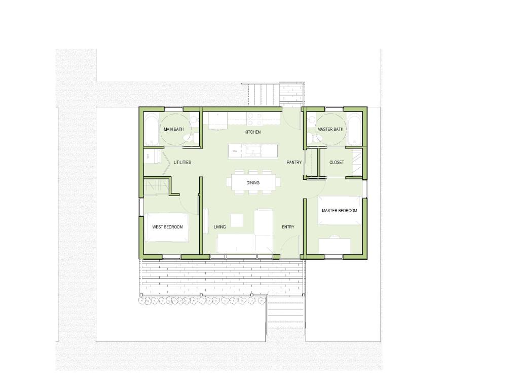
Project Description: At the beginning of the design process, the clients for the Zero Carbon Microhome – Habitat for Humanity of the Northern Flint Hills – charged the studio with developing a prototype home with a footprint less than 1000 ft2 that would contain two bedrooms and two bathrooms, with enough space for a household of three people. The ‘microhome’ designation was intended to appeal to first-time homeowners, small families, and retirees that were priced out of the Manhattan, Kansas metro housing market. Prior iterations of the studio had built 3-bedroom homes in the size range of 1200 to 1400 ft2, and the smaller footprint of the ZCMH would further reduce construction costs and allow four units of the ZCMH to be built in a “cottage cluster” where the middle of the site could be a shared green space (Figure 4), developed through HHNFH’s community land trust. The design of the ZCMH consisted of wings of private space (bedrooms and a bathroom) with an open public zone in the middle of the house that contained the kitchen, dining area, and living room, featuring a generous front porch, and a unified approach to structure and other building systems. Two small lots were purchased by HHNFH in Ogden, Kansas (within Manhattan’s metro area) where the cottage cluster of ZCMHs is being constructed.

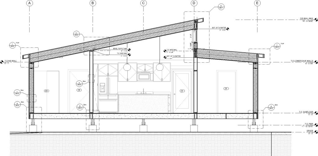
The house was prefabricated by the architecture studio at APDesign’s off-campus shop using a combination of flat-pack panels and volumetric modules that allowed the entire project to be shipped and places with forklifts, rather than cranes, while also enabling the ceiling height in the living room to surpass transport height limits typically associated with traditional modular construction. The home achieves zero carbon through a combination of roof-mounted PVs and super efficient envelope and building systems, while also integrating carbon negative hempcrete and hemp fiber insulation into the structure. A complete analysis of the home’s carbon footprint was undertaken in the article “Integrating hemp in a replicable model for affordable, low carbon housing: a zero carbon microhome prototype for the Kansas Flint Hills” available for view or download from the Projects page.







